Combiné 3en1 PMR encastré distributeur papier, sèche-mains et poubelle
Séchage des mains, soit par air, soit par feuille de papier
Combiné mural encastré inox grande capacité distributeur de papier essuie-mains, sèche-mains haute performance à double flux d’air et poubelle intégrée avec une fenêtre unique, permettant d’optimiser l’espace et l’accessibilité PMR des 3 fonctions avec une installation à la hauteur requise.
Offre le choix entre séchage des mains par air ou feuille de papier.
Ou de combiner un sèche-mains avec une seule feuille de papier pour un parfait essuyage des mains. Cette combinaison unique contribue au développement durable en réduisant la consommation de papier et d’électricité.
2 modes de fonctionnement disponibles :
Priorité Air = le sèche-mains et la Led verte s’allument lorsque les mains sont détectées et s’arrêtent à leur retrait.
Priorité Papier = délai de 3 secondes avant déclenchement du sèche-mains
Design épuré, charnière dissimulée et serrures affleurantes.
Fabriqué en acier inoxydable qualité AISI 304 finition brossée.
Porte épaisseur 1,2 mm avec bords pliés à 90° de 14 mm, angles soudés et charnière inox toute hauteur dissimulée, pour une rigidité maximum. Câble limiteur d’ouverture.
Deux serrures à clé affleurantes.
Boitier d’encastrement de construction entièrement soudée.
Distributeur capacité 450 à 600 essuie-mains selon format.
Accessoire DISTRITOP inclus : distribution continue des feuilles à l’unité, réduisant la consommation de papier d’au-moins 20%, éliminant bouchonnage et tirage de plusieurs feuilles à la fois. Un guide avec retour empêche les essuie-mains de tomber lors de l’ouverture de la porte.
Sèche-mains 230V 4 A, puissance 900 W, Classe I.
Double sortie d’air par fentes latérales ; l’orientation empêche de souffler dans le conteneur à déchets.
Détection infrarouge. Voyant LED vert / rouge.
Arrêt de sécurité après 90 secondes sans interruption.
Poubelle en plastique rigide étanche amovible 27.4 L.
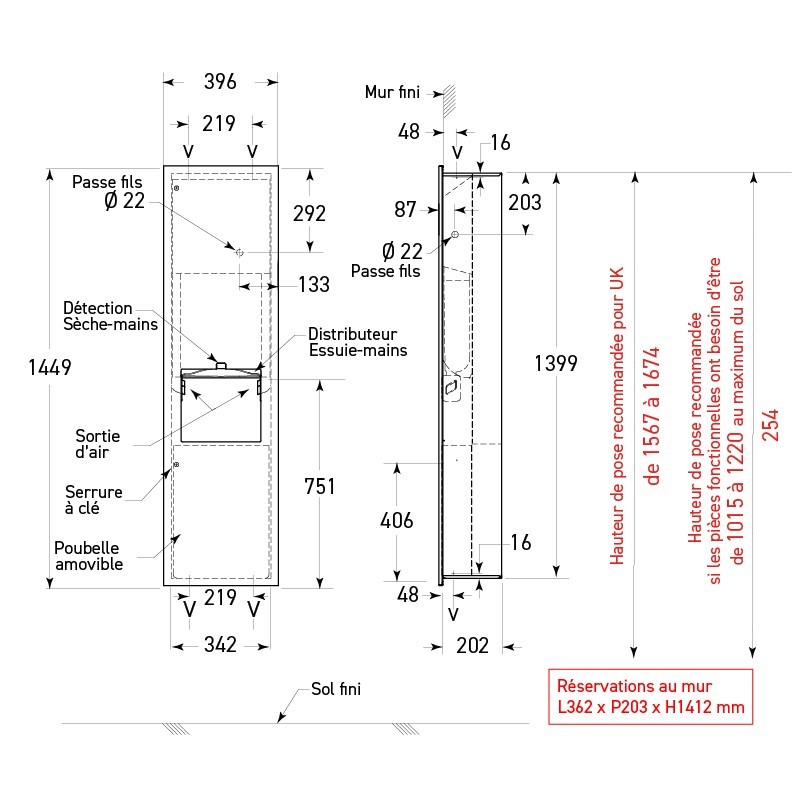
Dim. : L396 x P216 x H1449 mm (dont encastrement 202 mm).
Réservation au mur : L362 x P203 x H1412 mm.
CE. Garantie 2 ans.
- Détection
- Infrarouge
- Alimentation électrique
- Sur secteur 230V
- Capacité
- 450 à 600 essuie-mains
Poubelle 27,4 L - Arrêt de sécurité
- Après 90 secondes sans interruption
- Matériau
- Acier inox qualité AISI 304 bactériostatique
- Epaisseur inox
- Porte 1,2 mm
- Finition
- Brossée
- Puissance
- 900 W
- Réservation au mur
- L362 x P203 x H1412 mm
- Dimensions
- L396 x P216 x H1449 mm
- Garantie
- 2 ans. CE.
Combiné mural encastré inox grande capacité distributeur de papier essuie-mains, sèche-mains haute performance à double flux d’air et poubelle intégrée avec une fenêtre unique, permettant d’optimiser l’espace et l’accessibilité PMR des 3 fonctions avec une installation à la hauteur requise.
Offre le choix entre séchage des mains par air ou feuille de papier.
Ou de combiner un sèche-mains avec une seule feuille de papier pour un parfait essuyage des mains. Cette combinaison unique contribue au développement durable en réduisant la consommation de papier et d’électricité.
2 modes de fonctionnement disponibles :
Priorité Air = le sèche-mains et la Led verte s’allument lorsque les mains sont détectées et s’arrêtent à leur retrait.
Priorité Papier = délai de 3 secondes avant déclenchement du sèche-mains
Design épuré, charnière dissimulée et serrures affleurantes.
Fabriqué en acier inoxydable qualité AISI 304 finition brossée.
Porte épaisseur 1,2 mm avec bords pliés à 90° de 14 mm, angles soudés et charnière inox toute hauteur dissimulée, pour une rigidité maximum. Câble limiteur d’ouverture.
Deux serrures à clé affleurantes.
Boitier d’encastrement de construction entièrement soudée.
Distributeur capacité 450 à 600 essuie-mains selon format.
Accessoire DISTRITOP inclus : distribution continue des feuilles à l’unité, réduisant la consommation de papier d’au-moins 20%, éliminant bouchonnage et tirage de plusieurs feuilles à la fois. Un guide avec retour empêche les essuie-mains de tomber lors de l’ouverture de la porte.
Sèche-mains 230V 4 A, puissance 900 W, Classe I.
Double sortie d’air par fentes latérales ; l’orientation empêche de souffler dans le conteneur à déchets.
Détection infrarouge. Voyant LED vert / rouge.
Arrêt de sécurité après 90 secondes sans interruption.
Poubelle en plastique rigide étanche amovible 27.4 L.
Dim. : L396 x P216 x H1449 mm (dont encastrement 202 mm).
Réservation au mur : L362 x P203 x H1412 mm.
CE. Garantie 2 ans.
- Détection
- Infrarouge
- Alimentation électrique
- Sur secteur 230V
- Capacité
- 450 à 600 essuie-mains
Poubelle 27,4 L - Arrêt de sécurité
- Après 90 secondes sans interruption
- Matériau
- Acier inox qualité AISI 304 bactériostatique
- Epaisseur inox
- Porte 1,2 mm
- Finition
- Brossée
- Puissance
- 900 W
- Réservation au mur
- L362 x P203 x H1412 mm
- Dimensions
- L396 x P216 x H1449 mm
- Garantie
- 2 ans. CE.
Produits associés
Produits consultés



















































